Yousung Powder Machine Co., Ltd > product > product information > SLIDE GATE VALVE
 
 
HOME > product > product information > SLIDE GATE VALVE
 
 
Passivity
 
   
 
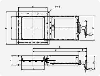
DIMENSIONS

Top measure = Round FLANGE / Bottom measure = Square FLANGE
[ unit(mm) ]
 
MODEL A C D E F G L H W N-φd
YSG-150 150 240 280 390 100 150 575 100 175 8-23
196 230 360 470 168 8-14
YSG-200 200 290 330 600 100 150 700 100 226 12-23
260 300 450 550 218 8-16
YSG-250 250 355 400 725 100 200 825 100 277 12-25
309 350 550 650 268 12-16
YSG-300 300 400 445 875 125 200 1000 125 330 16-25
375 430 650 775 324 12-18
YSG-350 350 445 490 1000 125 250 1175 125 368 16-25
421 480 775 900 382 12-20
YSG-400 400 510 560 1150 125 250 1275 125 418.5 16-25
471 520 875 1000 432 16-20
YSG-500 500 620 675 1425 150 300 1575 150 524 20-27
570 630 1100 1250 634 16-20
YSG-600 600 730 795 1700 15 300 1850 150 642 24-32
680 730 1325 1475 843 20-20
YSG-800 800 950 1020 2200 150 400 2350 150 848 28-35
900 950 1500 1650 1050 34-20
YSG-1000 1000 1160 1235 2750 150 500 2900 200 1048 28-35
1085 1150 1850 2000 28-20
E-mail: ypm1994@naver.com   113, Jeongoksandan 11-gil, Seosin-myeon, Hwaseong-si, Gyeonggi-do (18554)
Yousung Powder Machine Co., Ltd    Tel: +81-31-314-8433    Fax: +81-31-356-8322