 |
HOME > 제품소개 > 제품설명 > 나이프게이트 밸브 |
|
| |
MANUAL TYPE(ROUND FLANGE) |
AIR CYLINDER TYPE(ROUND FLANGE) |
 |
 |
| |
|
 |
 |
|
| |
MATERIAL |
FC20 S46C SUS304 SUS316 FCD40 |
| ※YSKG(수동)/ YSKA(자동) |
DIMENSIONS
|
[ 단위(mm) ] |
| MODEL |
A |
C |
D |
H |
E |
F |
E' |
G |
L |
N-φd |
| YSKG·A-100A |
105 |
175 |
210 |
75 |
328 |
60 |
442 |
120 |
213 |
8-19 |
| YSKG·A-150A |
155 |
240 |
280 |
75 |
417 |
65 |
492 |
150 |
263 |
8-23 |
| YSKG·A-200A |
210 |
290 |
330 |
100 |
507 |
75 |
583 |
200 |
334 |
12-23 |
| YSKG·A-250A |
260 |
355 |
400 |
100 |
616 |
85 |
696 |
250 |
384 |
12-25 |
| YSKG·A-300A |
310 |
400 |
445 |
125 |
691 |
95 |
776 |
300 |
444 |
16-25 |
| YSKG·A-350A |
350 |
445 |
490 |
125 |
786 |
95 |
868 |
300 |
466 |
16-25 |
| YSKG·A-400A |
400 |
510 |
560 |
125 |
886 |
105 |
1048 |
350 |
516 |
16-27 |
| YSKG·A-500A |
500 |
620 |
675 |
125 |
1045 |
105 |
1207 |
350 |
576 |
20-27 |
|
| |
| |
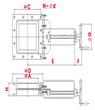
MANUAL TYPE(SQUARE FLANGE) |
AIR CYLINDER TYPE(SQUARE FLANGE) |
 |
 |
| |
|
 |
 |
| |
MATERIAL |
| FC20 S46C SUS304 SUS316 FCD40 |
| ※YSKG(수동)/ YSKA(자동) |
DIMENSIONS |
[ 단위(mm) ] |
|
| MODEL |
A |
C |
D |
H |
E |
F |
E' |
G |
L |
N-φd |
| YSKG·A-100SQ |
100 |
145 |
180 |
75 |
260 |
60 |
370 |
150 |
202 |
8-14 |
| YSKG·A-150SQ |
150 |
196 |
230 |
75 |
310 |
65 |
420 |
150 |
252 |
8-14 |
| YSKG·A-200SQ |
210 |
260 |
300 |
100 |
410 |
75 |
486 |
200 |
313 |
8-16 |
| YSKG·A-250SQ |
260 |
309 |
350 |
100 |
494 |
85 |
574 |
250 |
384 |
12-16 |
| YSKG·A-300SQ |
310 |
375 |
430 |
125 |
564 |
95 |
649 |
300 |
434 |
12-18 |
| YSKG·A-350SQ |
350 |
421 |
480 |
125 |
639 |
95 |
721 |
300 |
494 |
12-20 |
| YSKG·A-400SQ |
400 |
471 |
530 |
125 |
714 |
105 |
876 |
350 |
544 |
16-20 |
| YSKG·A-500SQ |
500 |
570 |
630 |
125 |
814 |
105 |
976 |
350 |
645 |
20-20 |
|