|
|
 |
HOME > 제품소개 > 제품설명 > 슬라이드게이트 밸브 |
|
| |
|
|
| |
수동 |
| |
|
| |
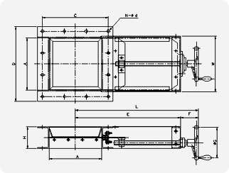
DIMENSIONS

주) 상부 칫수는 원형 FLANGE, 하부 칫수는 각형 FLANGE 입니다) |
[ 단위(mm) ] |
|
| |
| MODEL |
A |
C |
D |
E |
F |
G |
L |
H |
W |
N-φd |
| YSG-150 |
150 |
240 |
280 |
390 |
100 |
150 |
575 |
100 |
175 |
8-23 |
| 196 |
230 |
360 |
470 |
168 |
8-14 |
| YSG-200 |
200 |
290 |
330 |
600 |
100 |
150 |
700 |
100 |
226 |
12-23 |
| 260 |
300 |
450 |
550 |
218 |
8-16 |
| YSG-250 |
250 |
355 |
400 |
725 |
100 |
200 |
825 |
100 |
277 |
12-25 |
| 309 |
350 |
550 |
650 |
268 |
12-16 |
| YSG-300 |
300 |
400 |
445 |
875 |
125 |
200 |
1000 |
125 |
330 |
16-25 |
| 375 |
430 |
650 |
775 |
324 |
12-18 |
| YSG-350 |
350 |
445 |
490 |
1000 |
125 |
250 |
1175 |
125 |
368 |
16-25 |
| 421 |
480 |
775 |
900 |
382 |
12-20 |
| YSG-400 |
400 |
510 |
560 |
1150 |
125 |
250 |
1275 |
125 |
418.5 |
16-25 |
| 471 |
520 |
875 |
1000 |
432 |
16-20 |
| YSG-500 |
500 |
620 |
675 |
1425 |
150 |
300 |
1575 |
150 |
524 |
20-27 |
| 570 |
630 |
1100 |
1250 |
634 |
20-20 |
| YSG-600 |
600 |
730 |
795 |
1700 |
15 |
300 |
1850 |
150 |
642 |
24-32 |
| 680 |
730 |
1325 |
1475 |
843 |
20-20 |
| YSG-800 |
800 |
950 |
1020 |
2200 |
150 |
400 |
2350 |
150 |
848 |
28-35 |
| 900 |
950 |
1500 |
1650 |
1050 |
34-20 |
| YSG-1000 |
1000 |
1160 |
1235 |
2750 |
150 |
500 |
2900 |
200 |
1048 |
28-35 |
| 1085 |
1150 |
1850 |
2000 |
|
28-20 |
|
|
|
|