 |
HOME > 제품소개 > 제품설명 > 로타리 밸브 |
|
| |
|
|
| |
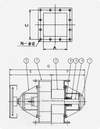
RVC(기밀형) ROTARY VALVE |
| |
| RVC형은 임펠러의 재질을 주물이나 스탠 주강품으로써, 미려한 표면을 보장하며, 케이싱은 정밀하게 가공조립하여, 임펠러와 케이싱, 임펠러와 벽과의 간격을 운반물의 특성(입자,온도)등에 따라 각각 조정되고 있으며, 이는 폐사의 경헙치에 의하여 구분되고 있습니다. |
| |
|
| |
| ① |
CASING |
② |
IMPELLER |
③ |
SIDE COVER |
| ④ |
SHAFT |
⑤ |
LANTTURN RING |
⑥ |
PUSHER |
| ⑦ |
PACKING |
⑧ |
BEARING |
⑨ |
MOTOR BASE |
| ⑩ |
CHAIN COVER |
⑪ |
SPROCKET |
⑫ |
GEARED MOTOR |
|
| |
DIMENSIONS( RVC(기밀형) ROTARY VALVE ) |
[ 단위(mm) ] |
|
원
형 |
Model |
A |
C |
D |
E |
F |
G |
H |
L |
N-φd |
적용
G/M KW |
| RVC-100A |
105 |
175 |
210 |
270 |
203 |
473 |
295 |
368 |
8-19 |
0.4 |
| RVC-150A |
155 |
240 |
280 |
295 |
228 |
523 |
305 |
368 |
8-23 |
0.4 |
| RVC-200A |
210 |
290 |
330 |
350 |
272 |
622 |
360 |
458 |
12-23 |
0.4-0.75 |
| RVC-250A |
260 |
355 |
400 |
395 |
305 |
700 |
420 |
484 |
12-25 |
0.75 |
| RVC-300A |
310 |
400 |
445 |
425 |
333 |
758 |
455 |
552 |
16-25 |
0.75-1.5 |
| RVC-350A |
350 |
445 |
490 |
485 |
386 |
871 |
510 |
557 |
16-25 |
1.5 |
| RVC-400A |
400 |
510 |
560 |
515 |
416 |
931 |
555 |
685 |
16-27 |
2.2 |
| RVC-450A |
450 |
565 |
620 |
555 |
452 |
1007 |
620 |
710 |
20-27 |
2.2 |
| RVC-500A |
500 |
620 |
675 |
612 |
484 |
1096 |
650 |
765 |
20-27 |
3.7 |
각
형 |
RVC-100SQ |
100 |
145 |
180 |
270 |
203 |
473 |
295 |
368 |
8-14 |
0.4 |
| RVC-150SQ |
150 |
196 |
230 |
295 |
228 |
523 |
305 |
368 |
8-14 |
0.4 |
| RVC-200SQ |
200 |
260 |
300 |
350 |
272 |
622 |
360 |
458 |
8-16 |
0.4-0.75 |
| RVC-250SQ |
250 |
309 |
350 |
395 |
305 |
700 |
420 |
484 |
12-16 |
0.75 |
| RVC-300SQ |
300 |
375 |
430 |
425 |
333 |
758 |
455 |
552 |
12-18 |
0.75-1.5 |
| RVC-350SQ |
350 |
421 |
480 |
485 |
386 |
871 |
510 |
577 |
12-20 |
1.5 |
| RVC-400SQ |
400 |
471 |
520 |
515 |
416 |
931 |
555 |
685 |
16-20 |
2.2 |
| RVC-450SQ |
450 |
520 |
580 |
555 |
452 |
1007 |
620 |
710 |
16-20 |
2.2 |
| RVC-500SQ |
500 |
570 |
630 |
612 |
484 |
1096 |
650 |
765 |
20-20 |
3.7 |
|